過去の受賞について
第17回NPO法人ケアリフォームシステム研究会全国大会が千葉で開催され
第8回ケアリフォーム大賞が決まりましたのでご報告いたします。
広島県:有限会社建人 鐵口 祐樹
大規模新築部門
タイトル:U様邸 安心安全快適に笑顔あふれる家づくり・・・
「球ちゃんの家」
優秀賞/単位空間部門
埼玉県:株式会社白石工務店
白石 充
タイトル:「一人でできるの?」って病院の先生にも言われてうれしい大満足の水まわりのリフォーム
白石 充
タイトル:「一人でできるの?」って病院の先生にも言われてうれしい大満足の水まわりのリフォーム
単位空間部門賞
福岡県:株式会社神崎工務店
神崎 嘉博
タイトル:新築から10年、子供の成長に対応する住まい
神崎 嘉博
タイトル:新築から10年、子供の成長に対応する住まい
課題部門
神奈川県:大栄建設株式会社
佐宗 康裕
タイトル:ご夫婦とも身体が不自由な方が目指したリフォーム
学生・福祉部門賞
神戸医療福祉専門学校
石崎 里佳
タイトル :ご夫婦とも身体が不自由な方が目指したリフォーム
石崎 里佳
タイトル :ご夫婦とも身体が不自由な方が目指したリフォーム
第8回ケアリフォーム大賞テーマ
テーマ
「夫婦とも脳性麻痺」
~老後のことを考えた住まいの提案~
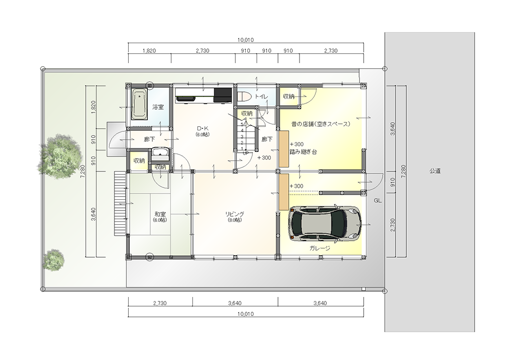
ご相談内容
夫婦ともに生まれつき障がいがあり、これまでは何とか生活ができていましたが年をとり現状の家では不都合な所がたくさんあり将来に不安を感じています。これから高齢になる私たちの身体の予測を考えたリフォーム、歩けるうちは2階にも上がりたいと思っています。良いアイデアがあればご提案お願いします。また障がい者の住宅改造助成金等もあれば教えてください。
※改修費用は2000万円程度のことは考えています。
Aさん夫婦の身体状況
・夫婦ともに脳性麻痺、言語障害、歩行障害ありともに転倒のおそれあり
ともに知的障害なし
・ご主人はすり足歩行、奥様は背中が湾曲、
現在は手すりを持って伝え歩きが可能、将来車いす生活が予想される
・木造屋 築52年・全面改装を希望
……………………………………………………
日常生活動作
移動:手すりがあれば安心(将来車いすが必要)
入浴:浴槽に入る時は入浴台があると安全
排泄:一般のトイレ設備で自立可能
就寝:現在は布団を敷いているが介護用ベッド利用を考慮中
※地盤面から床高は60㎝高さあり
家族構成
ご主人58才・奥様58才・娘(長女20才)
計3人暮らし
・CGパースで見る
・平面図詳細